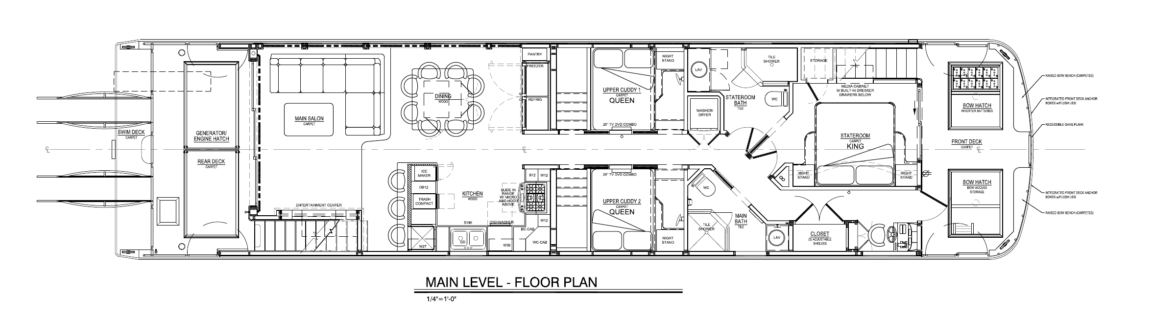
Tranquility is a deluxe houseboat co-owned by 18 families through Tranquility Houseboat, LLC. Built for comfort on Lake Powell's stunning waters, she sleeps up to 18 adults with deluxe accommodations for 10, featuring central A/C, custom granite countertops, and a full entertainment system.
Powered by twin MerCruiser 5.0 MPI fuel-injected V8 engines (260 HP each) with a CO SAFE 20 KW Westerbeke generator and a 4,000 watt inverter, she's equipped for extended stays with 400 gallons of main fuel and 300 gallons auxiliary.
Tranquility is co-owned by 18 families through an LLC structure. Each owner enjoys a rotating schedule of weeks on Lake Powell with fair and equal access. Annual maintenance fees and optional special assessments keep the boat in top condition for everyone.
Managed by Sunrise Peak Houseboats out of Lake Powell, Utah.
Owner Login